Newly built : 2-bedroom apartment in Steinach am Brenner (AT)
Trinserstrasse, 6150
NEW BUILDING "BERGERALMBLICK" - TOP 2
In the municipality of Steinach am Brenner (AT), the exclusive residential project "Bergeralmblick" is currently under construction, featuring a total of nine modern residential units. Secure one of the last available apartments now!
The Project
The complex consists of two elegant structures connected by a central stairwell. A passenger lift ensures barrier-free and convenient access to all above-ground floors.
Thanks to the generous window surfaces, the optimal orientation, and the well-thought-out architecture, residents in every unit enjoy a bright, friendly living ambience as well as a fantastic view of the surrounding mountain landscape. Despite the quiet location, the center of Steinach is reachable in just a few minutes on foot.
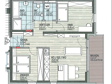
The Apartment TOP 02
The property TOP 02, located on the 1st floor, impresses with its functional and harmonious room layout:
A light-flooded living kitchen (or: open-plan living/kitchen area)
Two bedrooms
A modern bathroom
A separate WC (or: separate toilet)
A practical storage room
A spacious balcony
Features & Mobility (Future-Proof)
Sustainability: A photovoltaic system ensures an environmentally friendly and sustainable energy supply.
Mobility: Prepared EV charging stations (E-charging stations) make your home future-proof.
Parking: Underground garage parking space (for an extra charge/surcharge) as well as additional outdoor parking space (for an extra charge/surcharge) are available.
Crucial Note: Principal Residency Requirement
Pursuant to the local municipal regulations, the apartments are not designated for use as a holiday or secondary home.
The buyer is consequently obliged to establish their official principal residence within the acquired property.
This exclusive offer is intended for those who wish to permanently reside in Steinach am Brenner, work within the region, or relocate their primary base of life here;
-->Realize your dream of modern living in the Tyrolean mountains!
Position
The project is located above the village center of Steinach am Brenner, near Trinserstraße. The area offers numerous leisure activities: hiking and cycling trails, cross-country skiing tracks, outdoor swimming pool, ice rinks, and the Bergeralm ski and recreation area.
Excellent transport connections: the Brenner federal road and A13 motorway allow you to reach Innsbruck in about 25 minutes. VVT bus line 4146 conveniently connects to Steinach station, from where the ÖBB S-Bahn reaches the city center in 30 minutes. The center of Steinach, with schools, kindergarten, restaurants, and shops, is within a 10-minute walk.
prices
- purchase price 436,500.00 EUR
- purchase price for car parking space 27,500.00 EUR
- agent fee required yes
measures
- residential area approx. 72.95 m²
- kitchen area approx. 26.87 m²
- number of rooms 3
- number of bathrooms 1
- number of living rooms 1
- number of bedrooms 2
- number of separate toilets 1
- number of balconies 1
- balcony area approx. 9.33 m²
- number of parking spaces 2
- usable area approx. 72.95 m²
- basement area approx. 5.11 m²
More information
- floor 1st floor
- type of heating independent heating system
- type of beaconing district heating
- kitchen open-plan kitchen
- bathroom with bathtub, with shower, with washing machine connection
- lift yes
- basement yes
- balcony / terrace yes
- direction balcony / terrace north, east
New/used
- age new building
- type of condition as good as new
administration
- type of use habitation
- commercial use is possible no
- suitable as holiday property no
- under monumental protection no
energy certificate
- energy certificate available yes
- energy efficiency category A
- type certificate by demand
surroundings
- zone suburbs
- view mountain view
- meters in altitude approx. 1,048 m
- distance to bus station approx. 450 m
- distance to main-line station approx. 1 km
- distance to motorway approx. 850 m
- distance to city centre approx. 550 m
- distance to day nursery approx. 240 m
- distance to comprehensive school approx. 210 m
- distance to skiing area approx. 1.3 km
- distance to sports facilities approx. 500 m







