großflächiges Bürolokal mit Keller, Magazin und 5 Autostellplätzen!
39040 Ratschings / Racines
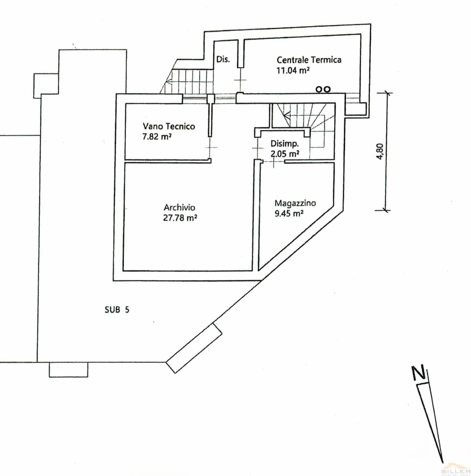
Nur die beste Lage für Ihren Geschäftserfolg: Wir bieten eine großzügige Gewerbefläche/Büro in strategischer Position zum Verkauf an. Im Erdgeschoss eines Gebäudes befindet sich der Eingang zum Lokal, das im Erdgeschoss (gesamt 74,09 Nettofl.) eine frei einteilbare Fläche sowie über WC mit Vorraum verfügt; im Kellergeschoss (gesamt ca. 47,1 m²) hingegen befinden sich praktische Archiv- und Kellerräume. Insgesamt von gesamt ca. 121 m².
Die Immobilie umfasst 5 reservierte Außenstellplätze und genießt maximale Sichtbarkeit. Die Lage ist bestens erreichbar, in unmittelbarer Nähe befinden sich andere Dienstleister (Geschäft, Bankomat) sowie Restaurants und Bars.
Flächen
- Gesamtfläche ca. 145 m²
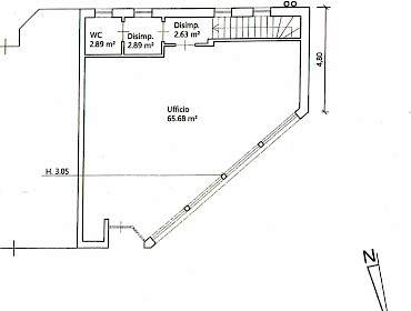
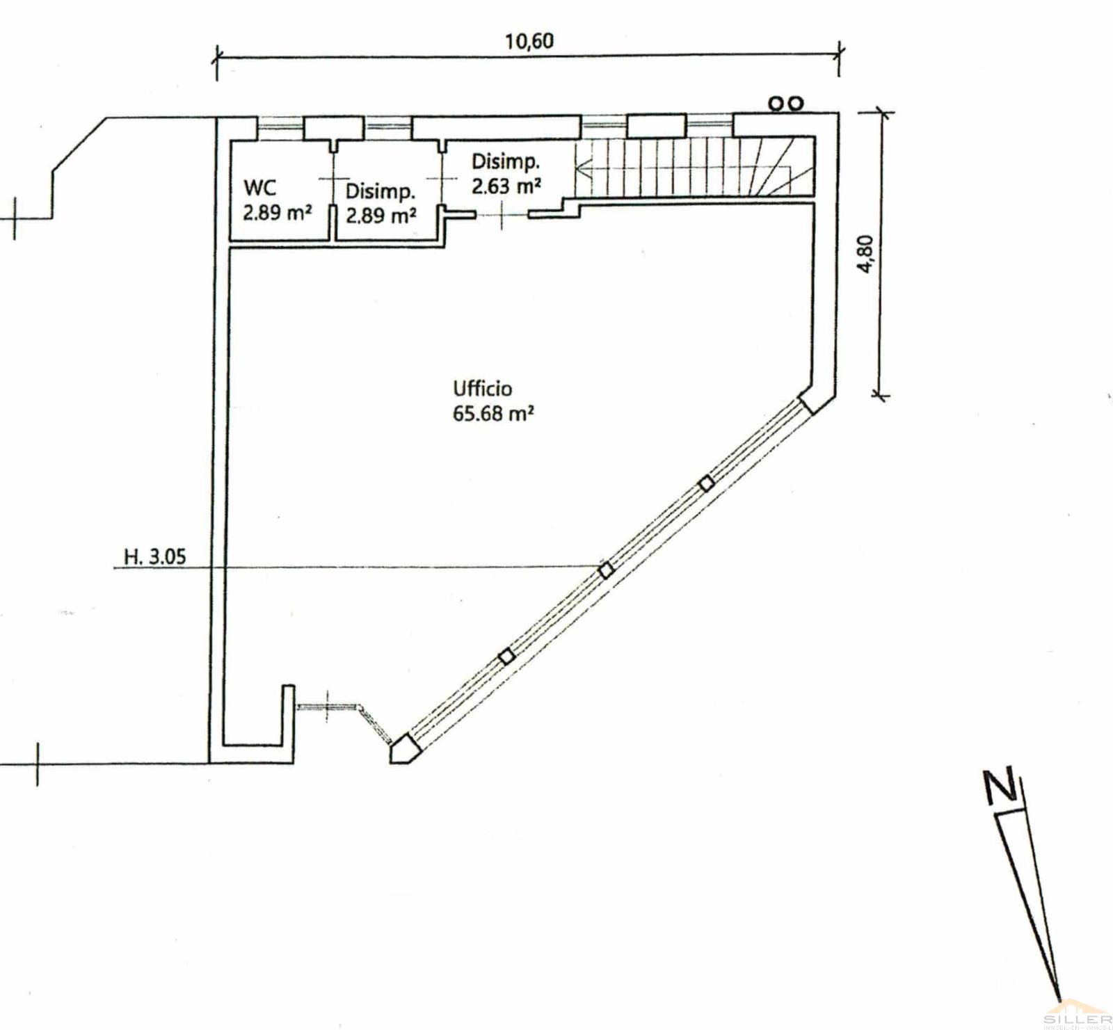
- Anzahl separater WC's 1
- Gewerbefläche ca. 121 m²
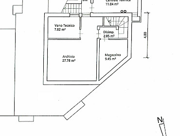
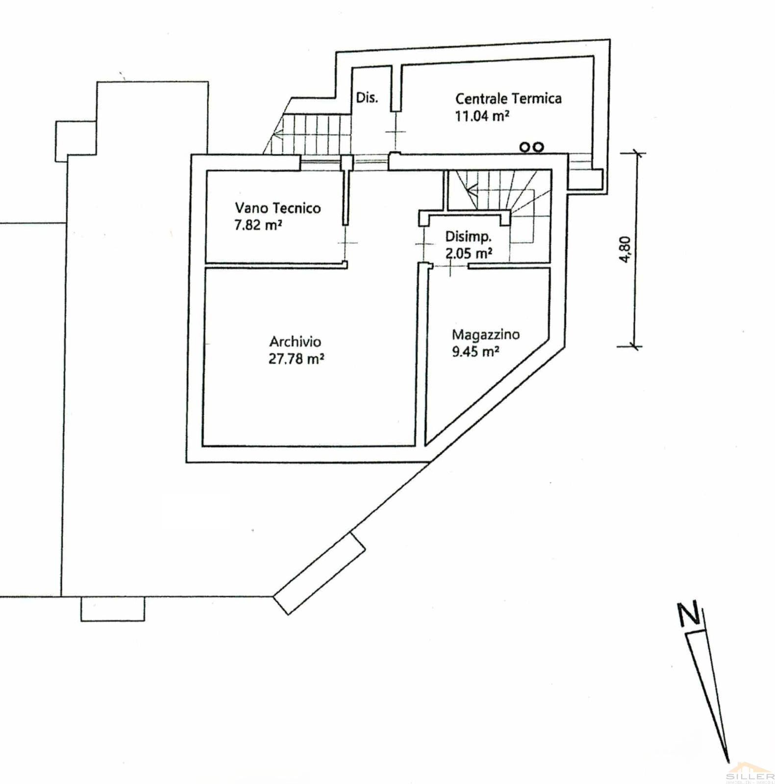
- Lagerfläche ca. 27,78 m²
- Bürofläche ca. 65,68 m²
- Anzahl Stellplätze 5
- Kellerfläche ca. 9,45 m²
- sonstige Flächen ca. 18,28 m²
Ausstattung
- Art der Ausstattung normal
- Etage Erdgeschoss
- Heizungsart autonome Heizung
- Befeuerung Fernwärme
- barrierefrei ja
- Personenaufzug nein
- Keller ja
Zustandsangaben
- Zustandsart gut
Verwaltung
- Nutzungsart Anlage / Rendite, Gewerbe
- verfügbar ab ab sofort
- Zugang zum Objekt ab nach Vereinbarung
Energieausweis
- Energieausweis vorhanden ja
- Energieeffizienzklasse G
- Art des Energieausweises nach Bedarf
Umfeld
- Gebiet Dorfrand
- Distanz zum Bus ca. 10 m
- Distanz zum Fernbahnhof ca. 3,9 km
- Distanz zur Autobahn ca. 3,1 km
- Distanz zum Zentrum ca. 3,6 km


















