Top-Investition: 3-Zimmer-Wohnung oder 3er-WG
6020 Innsbruck
Nur wenige Gehminuten vom Stadtzentrum Innsbrucks entfernt und in unmittelbarer Nähe zu Bahnhof, Universitäten sowie zahlreichen Einkaufsmöglichkeiten, gelangt diese 3-Zimmer-Wohnung in den Verkauf.
Das Gebäude strahlt einen gewissen Altbaucharme aus (vor 1945 erbaut), die Wohnung selbst befindet sich aber in sehr gutem Zustand: aufgrund ihrer äußerst strategischen Lage eignet sie sich sowohl zur Eigennutzung – insbesondere für Studenten oder Pendler – als auch als Anlageimmobilie in Form einer 3er-WG, was eine stabile und (unter gewissen Voraussetzungen auch sehr) lukrative Vermietung mit überdurchschnittlicher Rendite verspricht.
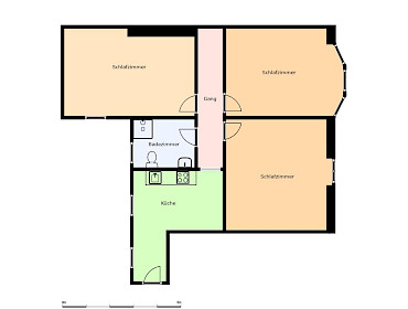
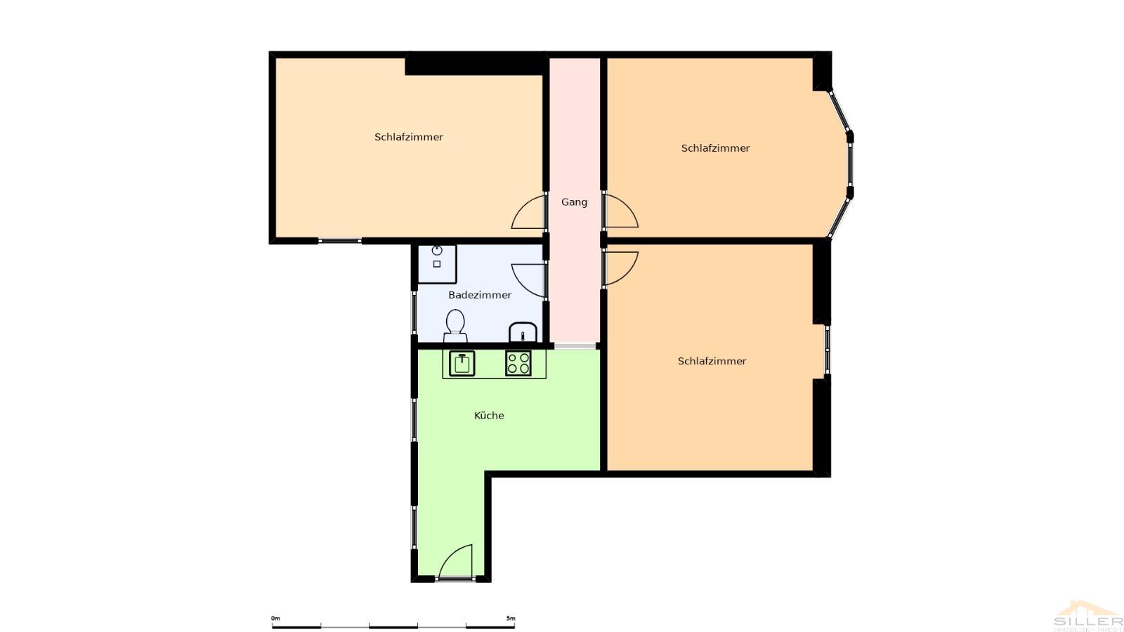
Die Wohnung selbst besteht aus einer Wohnküche (Küchenblock vorhanden), drei nahezu gleich großen Schlafzimmern – eines davon mit einem schönen Erker – sowie einem Badezimmer mit WC und Fenster. Ein Flur mit praktischer Nische bietet zusätzlichen Stauraum und kann ideal als Abstellbereich genutzt werden.
Auch für Anleger bietet diese Immobilie eine solide Grundlage: Das österreichische Mietrecht eröffnet interessante Möglichkeiten, unter anderem in Bezug auf steuerliche Abschreibungen, wodurch sich langfristig attraktive Perspektiven ergeben.
Eine Gelegenheit mit Substanz in gefragter Lage – überzeugen Sie sich selbst vor Ort.
Weitere Informationen
virtuelle Tour:
Flächen
- Verkaufsfläche ca. 89,1 m²
- Wohnfläche ca. 68,54 m²
- Zimmerzahl 3
- Anzahl Badezimmer 1
- Anzahl Schlafzimmer 3
- Anzahl separater WC's 1
Ausstattung
- Heizungsart Zentralheizung
- Befeuerung Gas
- Küche Kochecke
- Badezimmer mit Anschluss für Waschmaschinen, mit Dusche, mit Fenster
- Personenaufzug ja
- Keller nein
- möbliert teilweise
Zustandsangaben
- Baujahr 1944
Verwaltung
- verfügbar ab nach Vereinbarung
- Zugang zum Objekt ab nach Vereinbarung
Energieausweis
- Energieausweis vorhanden ja
- Energieeffizienzklasse D
- Art des Energieausweises nach Bedarf
- Heizwärmebedarf ca. 123 kWh/(m²a)
- Gesamtenergieeffizienz-Faktor 1,78
Umfeld
- Gebiet Ortsteil
- Höhenmeter (über NN) ca. 574 m
- Distanz zum Bus ca. 120 m
- Distanz zum Fernbahnhof ca. 120 m
- Distanz zum Flughafen ca. 4,2 km
- Distanz zur Autobahn ca. 1,7 km
- Distanz zum Zentrum ca. 1 km
- Distanz zur Kindertagesstätte ca. 900 m
- Distanz zur Grundschule ca. 850 m
- Distanz zum Gymnasium ca. 750 m
- Distanz zur Universität ca. 1,5 km
- Distanz zum Wandergebiet ca. 3,8 km
- Distanz zum Skigebiet ca. 1,2 km
















