Mit diesem Büro-/Geschäftslokal schneiden Sie gut ab! ✂️
39049 Sterzing / Vipiteno
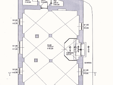
Zentral und zentrumnah gelegen, sucht dieses Lokal mit optimaler Schaufenster-Sichtbarkeit seinen Mieter. Der weitläufige, praktisch gestaltete Raum eignet sich perfekt als Büro, Geschäft oder Kosmetikstudio/Friseursalon und wird durch Abstellraum und WC optimal ergänzt. Mit ca. 130 m² Nettofläche bietet das Studio ausreichend Platz für Ihr Gewerbe. Zusätzlich sorgt das charakteristische Gewölbe für edle Ästhetik und verleiht dem Lokal sein besonderes Flair.
Nutzen Sie diese Gelegenheit – und wickeln Sie hier schon bald glänzende Geschäfte ab ✨!
Flächen
- Gesamtfläche ca. 130 m²
- Anzahl separater WC's 1
- Gewerbefläche ca. 130 m²
Ausstattung
- Etage Erdgeschoss
- Gesamtetagenzahl 1
- Befeuerung Fernwärme
- weitere Räume Abstellraum
Verwaltung
- denkmalgeschützt ja
Energieausweis
- Energieausweis vorhanden ja
- Energieeffizienzklasse F
- Art des Energieausweises nach Bedarf
- Endenergiebedarf insgesamt ca. 140 kWh/(m²a)
Umfeld
- Gebiet Stadtzentrum
- Distanz zum Bus ca. 83 m
- Distanz zum Fernbahnhof ca. 1,8 km
- Distanz zur Autobahn ca. 2 km
- Distanz zum Zentrum ca. 100 m











