Behagliche 4-Z-W zum Sonderpreis
39041 Gossensaß / Colle Isarco
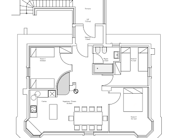
Zum Verkauf steht eine geräumige 4-Zimmer-Wohnung in Gossensass, die ein komfortables und einladendes Zuhause für Familien oder mehrere Generationen bietet.
Sie verfügt über ein Wohnzimmer mit offener Wohnküche, drei Schlafzimmer, sowie ein Badezimmer mit Fenster. Charakteristisch für den Baustil des Wohnhauses sind zwei charmante Erker im Wohn- und Schlafzimmer, während der Holzofen im offenen Wohnzimmerbereich zum Wohlfühlen einlädt. Ebenso kann vom Wohnbereich die Aussicht ins Pflerschtal genossen werden.
Die Immobilie ist komplett eingerichtet, befindet sich in gutem Zustand und ist sofort bewohnbar. Zudem ist sie nicht konventioniert und somit sowohl als Haupt- als auch als Zweitwohnsitz geeignet.
Ein gemeinschaftlicher Stellplatz zusammen mit dem Spezialpreis machen dieses Angebot besonders attraktiv - genießen Sie hier Ihre Familienzeit!
Preise
- Kaufpreis 225.000,00 EUR
- konventioniert nein
Flächen
- Verkaufsfläche ca. 90 m²
- Wohnfläche ca. 73,71 m²
- Zimmerzahl 4
- Anzahl Badezimmer 1
- Anzahl Wohnzimmer 1
- Anzahl Schlafzimmer 3
- Anzahl Terrassen 1
- Anzahl Stellplätze 1
- Stellplatzart gemeinschaftlicher Stellplatz
Ausstattung
- Art der Ausstattung normal
- Etage Dachgeschoss
- Befeuerung Gas
- Küche Wohnküche
- barrierefrei nein
- Balkon / Terrasse ja
- Ausrichtung Balkon / Terrasse Süd, West
- möbliert ja
Zustandsangaben
- Zustandsart gut
Verwaltung
- Nutzungsart Freizeit, Wohnen
- als Ferienimmobilie geeignet ja
Energieausweis
- Energieausweis vorhanden ja
- Energieeffizienzklasse G
- Art des Energieausweises nach Bedarf
- Endenergiebedarf insgesamt ca. 160 kWh/(m²a)
Umfeld
- nächste Stadt Sterzing
- Gebiet Dorfzentrum
- Aussicht Bergblick, Fernblick
- Höhenmeter (über NN) ca. 1.080 m
- Distanz zum Fernbahnhof ca. 1 km
- Distanz zur Autobahn ca. 7,2 km
- Distanz zum Zentrum ca. 600 m
- Distanz zum Wandergebiet ca. 200 m
- Distanz zum Skigebiet ca. 5,1 km
- Distanz zu Sportanlagen ca. 1 km
























